Services for Architects and Construction

Get a head start an architectural and construction floor plans and design drawings

Increase productivity, save time and reduce costs.

  • Take 1,000’s of measurements instantly for improved accuracy.

  • A faster rate of capture: Measure properties in minutes, not hours

  • Speed of delivery: in most cases, less than 48 hours instead of 5-10 days.

  • 2D drawings for less than half the cost of traditional methods.

  • Virtually exploring accurate 2D and 3D layouts, to make decisions and easily operate in unfamiliar environments.

We offer a quick and accurate way to document properties with 3D visualizations and generated drawings for Architects, Engineers and Construction professionals. Our services provide a head start on architectural and construction floor plans as well as as-build and design drawings.

  • Non-intrusive: normal operations can be maintained while scanning.

  • Data is compatible with Autodesk products including Revit, ACAD, Recap, Civil3D, and Navisworks.

  • Share details and conditions of a project without site visits, making collaboration on large projects easier.

  • Planning for “what if” scenarios, new equipment, safety plans, and necessary upgrades and changes to the layout and configuration, etc.

  • Multiple 2D and 3D CAD packages available including reflected ceiling and roof plan options

Say goodbye to the tedious process of manual drafting! This innovative approach represents one of the fastest and most cost-effective solutions available for accurately capturing and creating 2D floor plans. Get a significant head start on your architectural and construction floor plans, as well as on as-built and design drawings, allowing for smoother project progress and enhanced efficiency.

Avoid costly delays to your projects. Utilize iGUIDE DWG Floor Plans for better planning and execution.

Augmenting Laser Scanning with Virtual Tours

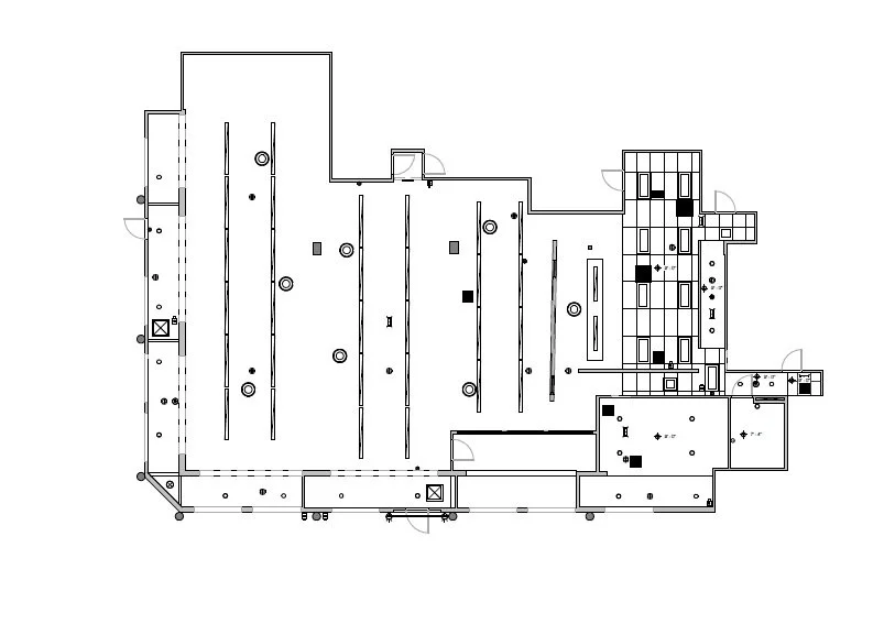
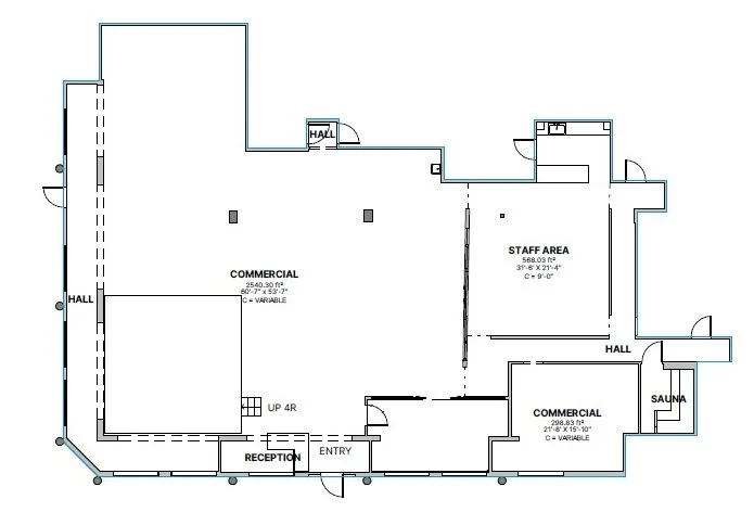
These are examples of Premium floor plans include annotations of labels, areas & dimensions. Appliances, cabinets, and bathroom fixtures are placed as well. Standard floor plans have the structural elements of the building only, including door and window placements. Along with the 2D floor plan, you will also receive the 3D virtual tour for your convenience.

Fast & Affordable As-Built Packages with 3D Virtual Walkthroughs

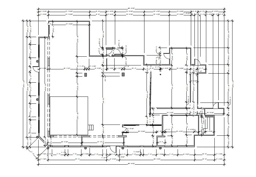
Accurate CAD floor plans and models:

With the ability to capture thousands of measurements in each scan, our CAD floor plans and 3D models are precise and available in various formats to suit your needs.

Property Detail:

Provides room measurements, dimensions and total square footage for space planning purposes, including renovation and fit-out projects.

3D immersive walkthrough:

Use the comprehensive 3D walkthroughs to communicate with your partners and vendors virtually. Walk through a real-world space to view conditions and easily locate critical assets including MEP. Option to include still photos for additional documentation

3D CAD Package

Unlock a property's full potential. This package pairs iGUIDE's immersive experience with 2D CAD (DWG) and 3D Model (Revit) deliverables, detailed Plotted PDFs, plus a Roof Plan and Exterior Elevation Drawing to provide complete documentation of your property.

2D CAD Package

Get the complete picture. This bundle combines iGUIDE's immersive tours with editable CAD Floor Plans (DWG files) and detailed Plotted PDFs for comprehensive property documentation and a jumpstart on your design process.

Premium Package

Provide an immersive virtual experience that lets partners, clients and contractors explore your site 24/7 from any location. Capture every detail and feature unique tagging and measurement tools, giving you comprehensive project information.

Includes:

  • 3D Virtual Walkthrough

  • CAD Floor Plan

  • 3D Model

  • Plotted PDF

  • Roof Plan

  • Exterior Elevation Drawing

  • Reflected Ceiling Plan (Optional)

Includes:

  • 3D Virtual Walkthrough

  • CAD Floor Plan

  • Plotted PDF

  • Exterior Elevation Drawing (Optional)

  • Reflected Ceiling Plan (Optional)

Includes:

  • 3D Virtual Walkthrough

  • Schematic Floor Plan